Khirbet el-Qasr Complete

ID: 127

Region/Province: Palaestina I

Gazetteers

Localization

Site plan

Description

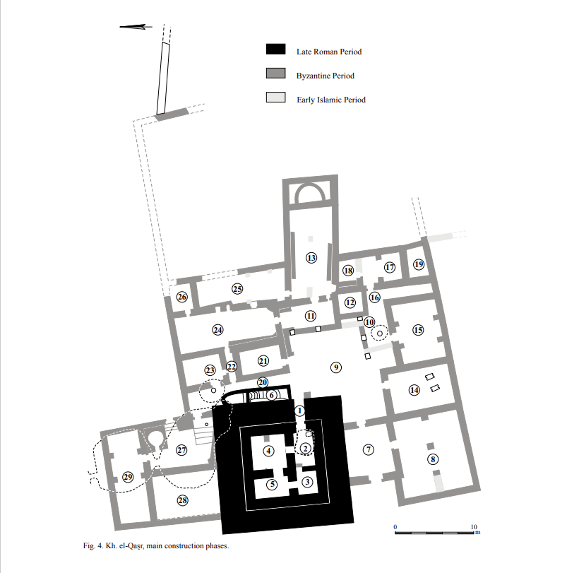
Note on documentation: The association of the inscriptions from the cave chapel of Salome with this site remains uncertain. Consult materials in Tomek’s folder, which also include early Arabic inscriptions. Site and setting Khirbet el-Qasr lies on the eastern margins of the Hebron highlands at roughly 600 m above sea level. It is situated about 3 km southeast of Bani Naʿim and approximately 5 km east of the main southbound road from Jerusalem and Bethlehem. Overview of remains The core of the visible remains is a Byzantine monastic establishment that reuses an earlier late Roman tower constructed above a cave. Within the complex are multiple rooms and functional spaces, notably the tower itself, an open courtyard, a prayer hall, and an adjacent chamber paved with a carpet mosaic. Later activity on the site includes an Early Islamic oil press and sparse traces from the Mamluk period. Architectural description of the monastery The monastery is organized around four principal ranges: - A central sector incorporating the tower and a stone-built vestibule. - An eastern range, to the east of the tower, composed of a cluster of rooms surrounding an internal courtyard. - A southern range, added on the south and functioning as the main entrance wing. - A northern wing that adjoins the northwestern corner of the western wing. The principal doorway, 1.40 m wide, carried on its arch a Greek text typical of monastic contexts: “This is the gate of the Lord; the righteous shall pass through it.” Directly opposite was a second entrance, 0.90 m wide, leading to the courtyard of the eastern range (plan no. 9). A third doorway, 1.00 m wide, pierced the southern wall and opened into a hall articulated by a row of pillars. The presence of troughs, together with the hall’s position near the entrance, suggests it functioned as a stable. Chronological development Excavations distinguished five building phases: - Phase I (Second Temple period, 516 BCE–70 CE): attested by ritual immersion installations (miqwaʾot) and associated ceramic assemblages. - Phase II (late Roman, late 4th–early 5th century CE): erection of a tower above a cave, comparable to numerous towers documented in the Hebron Hills and northern Judea. - Phase III (Byzantine): construction of the monastery, incorporating earlier structures including the tower. - Phase IV (Early Islamic, Abbasid): installation of an oil press. - Phase V (Mamluk): limited and fragmentary remains. Further reading: Di Segni, L., "Greek Inscriptions from the Monastery at Khirbet el-Qaṣr", in: Christians and Christianity IV: Churches and Monasteries in Judea, edited by Carmin, N., Jerusalem, 2012: 299-302. Magen, Y., Har-Even, B. and Sharukh, I., "A Roman Tower and a Byzantine Monastery at Khirbet El-Qasr", in: Christians and Christianity IV- Churches and Monasteries in Judea, edited by Carmin, N., Jerusalem, 2012: 247-298. Magen, Y., "Late Roman and Byzantine Towers in the Southern Hebron Hills", in: Judea and Samaria Researches and Discoveries, edited by Magen, Y., Jerusalem, 2008: 217-246. Kloner, A. and Hirschfeld, Y., "Khirbet el-Qasr — A Byzantine Fort with an Olive Press in the Judean Desert, ", in: Eretz-Israel: Archaeological, Historical and Geographical Studies, Michael Avi-Yonah Memorial Volume, Jerusalem, 1987: 132-141.


Added by: Paweł Nowakowski
Author: Julia Borczyńska, Małgorzata Krawczyk
Added: 2023-05-12
Last modified: 2023-06-22

Buildings:

Inscriptions:

No inscriptions found, click here to add new

No inscriptions found, click here to add new

No inscriptions found, click here to add new